Geysers construction; Geysers working principle; Selection of Geysers
Complete Guide to Geysers: Types, Working, Parts, and Safety Features
Geysers are an integral part of every modern household, providing hot water for bathing, cleaning, and cooking. They work on the simple principle of converting electrical energy into heat energy using a heating element. While immersion rods also use the same principle, geysers are far more advanced as they come with storage, control systems, and built-in safety features.
In this article, we will cover:
-
Working principle of geysers
-
Types of geysers
-
Internal parts of geysers
-
Key points to consider before buying a geyser
🔹 Working Principle of a Geyser
A geyser uses a heating element that converts electrical energy into heat. The element is submerged in water inside a tank (in case of storage geysers) or wrapped around a pipe (in instant geysers). As electricity flows through the element, it heats up, and this heat is transferred to the water.
The thermostat and other control systems ensure the water does not overheat, protecting both the geyser and the user.
🔹 Types of Geysers
1. Pressure Type Geysers (Storage Geysers)
-
Have a storage tank where water is kept under pressure.
-
Hot water flows to taps and showers with a good flow rate.
-
Cold water inlet is at the bottom, while the hot water outlet is at the top.
-
This ensures the geyser never runs empty, preventing the heating element from burning out.
✅ Best for: Families needing a steady supply of hot water for multiple uses.
2. Non-Pressure Type Geysers
-
Similar to pressure-type, but come with a single outlet.
-
Hot water is displaced when the cold water valve is opened.
-
A thermostat is installed in the water supply line.
✅ Best for: Small households with basic hot water needs.
3. Instantaneous (Tankless) Geysers
-
Available in both pressure and non-pressure designs.
-
Water is heated on-demand as it flows through a pipe surrounded by a high-rating heating element.
-
Made with durable material for safety and longevity.
✅ Best for: Quick hot water needs, kitchens, and areas with space constraints.
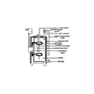
🔹 Internal Parts of a Geyser
A geyser consists of several parts that ensure efficiency, durability, and safety:
-
Inlet Tube – Allows cold water to enter the geyser.
-
Heating Element – Converts electricity into heat.
-
Outlet Valve – Discharges hot water from the tank.
-
Steel/Fiber Tank – Stores water in storage geysers and houses internal components.
-
Pressure Relief Valve – Prevents damage from excess pressure.
-
Thermostat (Cut-off Switch) – Cuts off power when water temperature exceeds safety limits.
-
Anti-Corrosion Anode Rod – Usually made of magnesium; protects the tank from corrosion.
-
Insulation Layer – Glass or epoxy lining to retain heat and reduce energy loss.
🔹 Key Factors to Consider Before Buying a Geyser
-
Star Rating
-
Higher star ratings indicate better energy efficiency.
-
-
Standing Losses per Day
-
The energy lost when a geyser remains switched on continuously.
-
Example: A 25-liter, 5-star geyser typically loses only 0.5 kWh/day.
-
-
Safety Features
-
Pressure relief valve & thermostat for over-temperature and over-pressure protection.
-
Modern geysers also include short-circuit protection: during a fault, 240V is converted into 12V or 24V, ensuring no electric shock.
-
✅ Conclusion
A geyser is no longer just a water heater—it’s a safety-tested, energy-efficient appliance designed for modern households. Whether you choose a storage geyser for family use, a non-pressure geyser for limited needs, or an instant geyser for quick heating, understanding the parts, working principle, and safety features will help you make the right buying decision.
⚡ Pro Tip: Always check the BEE star rating, warranty on the heating element, and safety certifications before buying a geyser.


If your carbon monoxide detector keeps going off, there is a possibility of a gas line leak in the proximity of your water boiler that could ignite the next time the pilot light goes on.
ReplyDeleteboiler heating treatment service in Ontario
ReplyDeleteI really find this blog very interesting and informative. You've provided some great information and ideas to your readers. Please keep sharing.
Please visit Sheds Bunbury